物件番号 写真画像 |
住所1 |
タイプ |
間取 面積m2 |
家賃 共益費 |
築年月 |
階数 |
詳細 |
画像 |
16216
|
広島市西区己斐本町2丁目 |
|
1LDK 29.19m2 |
¥76,000 ¥3,000 |
 |
8階建 |
|
    
|
16217
|
広島市西区己斐本町2丁目 |
|
1LDK 29.19m2 |
¥76,000 ¥3,000 |
 |
8階建 |
|
    
|
16218
|
広島市西区己斐本町2丁目 |
|
1LDK 29.19m2 |
¥76,000 ¥3,000 |
 |
8階建 |
|
    
|
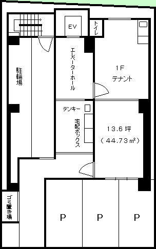
16201
|
広島市西区己斐本町2丁目 |
店舗・事務所 |
44.73m2 |
¥176,000 |
R07/02
 |
1階/8階建 |
|
 
|
16205
|
広島市中区上幟町 |
マンション |
1SLDK 83.18m2 |
¥250,000 |
R03/02
 |
11階/15階建 |
|
    
|